微信: tina_koo每周二休息TEL:023-67982484

9:00-12:00 | 13:30-17:30

室内平层 >> 返回

您当前所在位置:首页 > 作品展示 > 室内平层 > 正文

2021 云岭

更新时间:2021-04-04 16:34:43


HOUSING INFORMATION


我们通过选择住宅,来选择自己的生活方式,而住宅本身也改变着我们的生活方式。


此案位于礼嘉商圈附近,算是龙湖集团打造的一个高端生活集群,房子有优厚的教育资源、商业资源、生活资源。业主找到我们进行设计的时候,提前表达了对新的居住环境的向往和对高端品质生活的追求,需要摩登、简洁、时尚、宜居的居住空间,本身居住人员比较单一,所以我们在设计的时候将整体的空间做了二次划分。









入户视觉 Enter a visual

延长沙发背景墙,

加以山水纹路的岩板作为远端玄关背景,

搭配色块装饰画及饰品,

让进入空间的第一眼有落处,

且体现出空间主人的气质和特性。



细节体现

香薰烛台提升空间的品质和主人的气质,

让空间不再是冰冷的空间,

能触动你的各种感官,

暖黄色的灯光让人在回家的第一时间就能放松。




餐厨空间 Eat hutch

通过空间结构的重组,

将原始餐厨区域连接成一个整体,

墙面鱼肚白的砖和地面的灰色让空间层次感十足,

采用全嵌入式的冰箱,

使得厨房区域更加整体干净。

利用承重墙打造超长吧台,

即是餐厨的缓冲区,

也是一个咖啡的操作区,

生活的情趣就是于此。


超长的吧台成为连接客厅、餐厅、厨房的载体,

人少时是咖啡吧,人多时也能成为操作台,

多利用功能叠加,让空间的功能不再单一。

顶面采用加长风口,

让空间的线型特征更加明确。


岩板餐桌和玻璃餐边柜让餐厅区域用餐氛围更加轻松,

加一盏落地灯,推杯换盏,

夜幕降临时画面感十足。

采用组合画的形式来装点空间,

让原本局促的用餐区节奏感十足,

而微弱的烛台灯恰如黑夜的一点星光。

(光是空间的载体也是空间的精灵,我们除了必要的顶面上层灯光意外,中部和下部的氛围灯光也是十分美好的存在)




客厅视角 The sitting room perspective

岩板的干净利落和格栅板的序列以及黄金分割来完成背景墙的打造。

转角沙发可做可躺,

让居住者的生活更多样,

搭配玻璃材质的茶几和造型独特的植物,

让空间润色不少。


简化版的电视墙,

与相对的墙面形成造型上的对比,

让空间的功能做主,

观影的中心始终是电视。



细节展示


复古皮质沙发和木质边几以及绒面的抱枕,

在软装设计中不同材质相似饱和度,

在统一的前提下丰富空间层次感。



在空间中营造出空灵的效果,

形体轻便的坐墩,

能成为空间的填补者,

能让空间更加饱和。




卧室 Master bedroom

利用过道和衣帽间的区域做了次净衣以及行李箱收纳区,

保证衣帽间仅仅为干净衣物的存放。

柜体内的内嵌灯光即时日常的装饰,

也是夜间起夜的照明。

几何图案的床头背景与干净的床头背景形成鲜明的对比,

形体干净讨巧的挂衣架屹立其间,

恰恰为这个冰冷的空间增添了一份无形的魅力。

主卧的角落摆放一个休闲椅和落地灯,

让其成为睡前的过度。

有事小空间带给人的包裹感能让人更加具有安全感。


在空间中选择金属和玻璃材质来体现空间的属性,

让简洁的特性能得到最大化的体现。




书房 Study

健身空间和书房空间做叠加,

让空间的功能更加多样化。

穿插式的书桌设计,

既可以优化呆板的柜子,

也能利用角落做一个简单的办公区。





次卧 Second lie


原始飘窗的改造打造出一个临窗的角落,

通过饰面材质的划分完成卧室壁龛的设计,

代替床头柜的功能的同时,

木质可以给人温润的感受。

柔色布艺也能在整个空间中让人特别的放松。

主卫 Advocate toilet


利用卫生间包管的手法来完成壁龛的制作,

通过灯光和材质的搭配,

视觉上放大了原本面积紧凑的卫生间。

也能打造出不一样的感受。


设计记录 Densign record


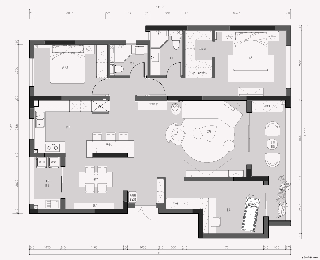
原户型结构较方正,功能分区比较明显,但是往往这样明显的功能分区无法给人一种别具一格的空间体验。于是我们将户型做了调整。

. 拆除入户左侧墙壁,让空间视野更加开阔。

. 将原始入户右侧房间全部打开作为餐厅。

. 增加厨房功能区,利用承重墙做独立吧台,增强生活场景。

. 增加沙发背景墙长度,让入户视觉有中心点。

. 改变主卫进门方式,增加衣橱空间。




客服咨询:
咨询热线: 023 6798 2484
营业时间: 09:00~12:00   13:00~17:00   (每周二休息)
地址:重庆广告创意产业园四期19栋106