案例资料红星美凯龙 陆拾陆定制家居店
[项目面积]:270㎡
[项目地址]:南坪红星美凯龙1楼四号门
[材料配套]:
定制家具部分:陆拾陆号定制
灯光:简然照明
乳胶漆:阿尔贝娜
设计不仅与美有关,还要去关乎人性
重建人与事物的关系
用丰富的文化和探索的思维形成了完美的平衡
组建而成魅力无限的空间
-
YAOOOG-
设计记录 / Design record

Completed in September 2020,陆拾陆家居红星美凯龙店终于揭开面纱。这是我们与陆拾陆家居的第二次携手合作,坐落于红星美凯龙建材馆西南方两条主要通道的交汇处。
我们与负责人的多次沟通,权衡企业的战略布局以及家居市场的导向,公司高层将它定位陆拾陆家居进军高端市场的招牌门面。
ZC HOME

将品牌精神融入当代消费者使用场景中,成为我们设计最重要的切入点。
首先将空间分成几个区域,这也有利于我们理清动线关系,空间是否宽敞和动线是否合理,决定了是否能将产品的特点展示出来,顾客是否有良好的购物体验。
设计理念 / Design concept
圆弧形设计可以让空间更有趣味性。所以我们考虑用一些简单的圆柱体与长方体结合,几种不同规格的几何体相互穿插,从而在几何体内部形成一些耐人寻味的空间。


圆弧形的造型并不是凭空想象出来的,而是通过4根圆柱体切割立方体自然而然形成的切面而得来的,圆柱体并不真实存在于空间中,仅仅是为了切割空间。
水平放置的粉色圆柱体切割了主次入口,将主次入口所在的外立面联系起来。从主通道经过时,门头效果更加壮观。垂直放置的红色圆柱体切割了门头空间,形体上并没有完全将空间切断,而是用橙色玻璃砖延续圆柱形体,用不同的高度围合这个圆形区域,当视线移动时,会给人一种若隐若现的意境感。最后两根有一定倾斜角度的橙色圆柱体在原建筑的其中一面墙相交,在墙面上留下了两个相交圆的造型,当在店外从造型处经过时,如同一个硕大的“望远镜”帮你窥探室内的风景。而两根橙色圆柱体的另一端与建筑的切面分别形成了两个橱窗。
门头 / storefront signboard
由“细腻主义”包裹外立面,成为建筑的内外沟通介质。

门头的设计,一方面要考虑到商场的人流量,分清主通道和次通道。高人流量的通道将是我们考虑店面主入口重要依据。另一方面还要考虑到店面的入口对店内的动线的影响。

店面LOGO由一个入口延伸到另一个入口,让空间以及外立面的表达更连续。


“望远镜”造型、橱窗、主次入口的门洞同时构成了整个店面的外立面效果。我们运用圆柱体去切割立方体从而使空间的手法统一,贯穿始终。

外立面造型由几个圆柱体相交而形成,橙色和白色的搭配堪称经典。橙色的造型橱窗既弱化了阳角在视觉上的压迫感,同时橱窗的朝向正好面向过道转角。白色的墙面突现橙色橱窗,吸睛格外明显。

无论顾客从任意方向经过,都能感受到外立面有规律的变化。
内部空间 / inner space
室内设计贯穿了异形的建筑体块,以棱角分明的现代力量感,有意区别于生活的自然形态。深色系的空间基调之上,漫反射的光照模式和光滑饰面的二次反射相结合,营造出悠远的视觉广度。



店内灯光的运用,通过光影的明暗关系强调单品在空间中的重要性。



透明的玻璃砖以及灰色的水泥砖质感让空间冷静下来,橙色的单椅如同黑夜里的一团火焰。站在一旁会有不顾一切想要靠近它的冲动。

透过窗洞可以看到,阶梯造型是店外空间向店内空间的延伸,橙色的阶梯状吊顶解决了原建筑通风管道对层高的影响,黑色金属球体,大小不一,高低错落,如同在阶梯上跳跃一般。两者的结合让空间更有趣味性。



吊顶对磁吸轨道灯的隐藏处理,让顶面更加干净平整。


营造

营造昏暗的环境,通过一束光线,让产品脱颖而出。


设计细节 / Design details
细节的处理为品牌和客户在购物旅程中提供了耳目一新的视觉角度。

重复用一种元素,以阵列的形式 排布,让空间更有秩序。



项目落地 / Actual
注重差异性的设计的同时,保证项目实际落地率。
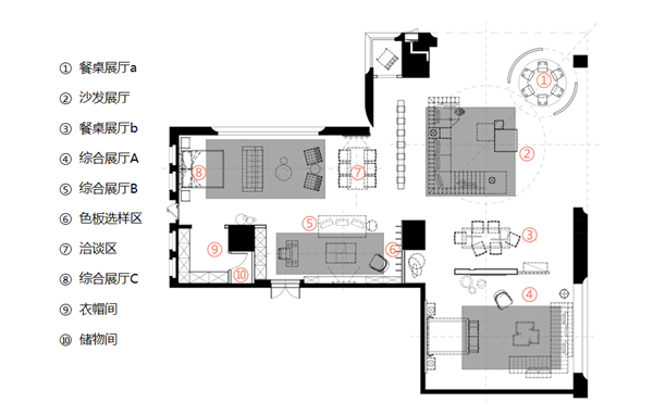
方案设计图




咨询热线:
营业时间:
地址:重庆广告创意产业园四期19栋106
重庆驻造装饰设计有限公司 版权所有 2015-2020 All Rights Reserved Powered by zc-design.cn
Copyright @ 2015-2020 重庆驻造装饰设计有限公司
网站备案号;渝ICP备18017407号-1