微信: tina_koo每周二休息TEL:023-67982484

9:00-12:00 | 13:30-17:30

室内平层 >> 返回

您当前所在位置:首页 > 作品展示 > 室内平层 > 正文

2021 九里晴川

更新时间:2021-02-20 10:25:32



HOUSING INFORMATION


这是一份迟到的作业,18年4月份就开始设计。直到今年才拍照,其实完工比较久了,因为业主家里迎来了超级可爱的小宝宝,没有时间购买后续产品,2年之后的今天,不知道小朋友有没有喜欢我们设计的新家(希望小可爱能健康成长)。








Living room / 客厅


没有拘泥风格,

也没有刻意去做一些电视墙之类的造型。

预留出白墙尺度方便使用投影后,

增加收纳空间,柜门与墙面齐平,

自然形成空间的切割。


错位墙体做储物和书桌,

窗边的优势不用担心采光问题。

整体深沉的色彩中紫色椅子作为亮点出现,

使空间气质变得与众不同。

阳光洒在书桌上,一片宁静美好。

极窄边吊搭配无主灯设计,

上方空间有层次而不抢占主体。

白墙与背景墙和储物柜选择相同色相,

深浅对比自然分割功能区。

橘色象腿椅活跃在其中,

给空间注入无限活力。


(象腿椅大名Roly Poly,设计师是来自英国的 Faye Toogood 。她和妹妹Erica Toogood 成立了一家工作室,涉足了家具、时装、艺术、室内等多个设计领域,以纯粹的美学语言传递设计态度。)

整个空间的表达延续简洁通透的设计语言,

利用简练的线条和大的块面来塑造空间。





Eat hutch / 餐厨空间


场域布局依据行动路线与逻辑原则划分,

开放式客餐厅与厨房连成一线。

借助客厅玻璃拉门让光线注入室内,

使得整个空间通透而明亮。

L形的操作台面加上岛台和餐桌的错位连接,

不仅使用还能增加空间美感。



餐厅延续了客厅的主色调,


二者既互通相连又各自具有空间的独立性。

餐桌上一缕木色在黑白相宜的素雅中跳脱而出,

增添了一份清新与活力。

设计师希望打造一个简约轻盈的用餐空间,

营造轻松但不失品质的就餐氛围。

干净的米白色皮质座椅与两侧黑色墙面和白色柜子搭配,

来自厨房与客厅的光线同时倾入,

通过地面白色大理石瓷砖反射使空间氛围轻松明快。



Master bedroom / 主卧

主卧以简洁的造型作为主导,


搭配同色系低亮度的床头硬包

块面和线条使得空间工整却有趣。


深灰色占据卧室空间的视觉中心,


为了避免视觉疲劳产生压抑情绪,

整个卧室三分之二以上位置全白处理,

让空间“透透气”。

白色柜门和深灰色桌台融合储物和梳妆功能,


赋予空间更宽敞的置物平台。

白与灰平行相拥,

俨然一副和谐共生的氛围。


延续公共区的设计手法


用亮色抽象挂画打破无色彩的寂静,

实现设计语言的统一性。

这里的每一处都渗透着严谨的气息,


繁多的纹理自然并有条理的呈现在眼前,

提升了空间的精致感。




Second lie / 次卧

儿童房整体布局以简单实用为向导,


因为设计的时候还没有小朋友,

因此在设计的时候做的比较中性。

背景浅色打底,与亮色家具相融合,


创造属于小朋友的秘密空间。

当然有一些产品是有了宝宝之后购买的,

看房间细节能看出是弟弟还是妹妹吗?





Elderly housing / 老人房


老人房于灰白主色调中融入一抹古朴素雅的木色,


整个房间搭配的比较稳重,

低调中更添一份沉静之美。






Advocate toilet / 主卫


墙面浅色地面深色的搭配永不过时,

在墙地通铺盛行的时代仿佛就是一股清流。

卫生间改造之后仅有5.5㎡,


却能在放进浴缸的同时还能有独立的淋浴房,

把空间利用到了极致。


设计记录 Densign record


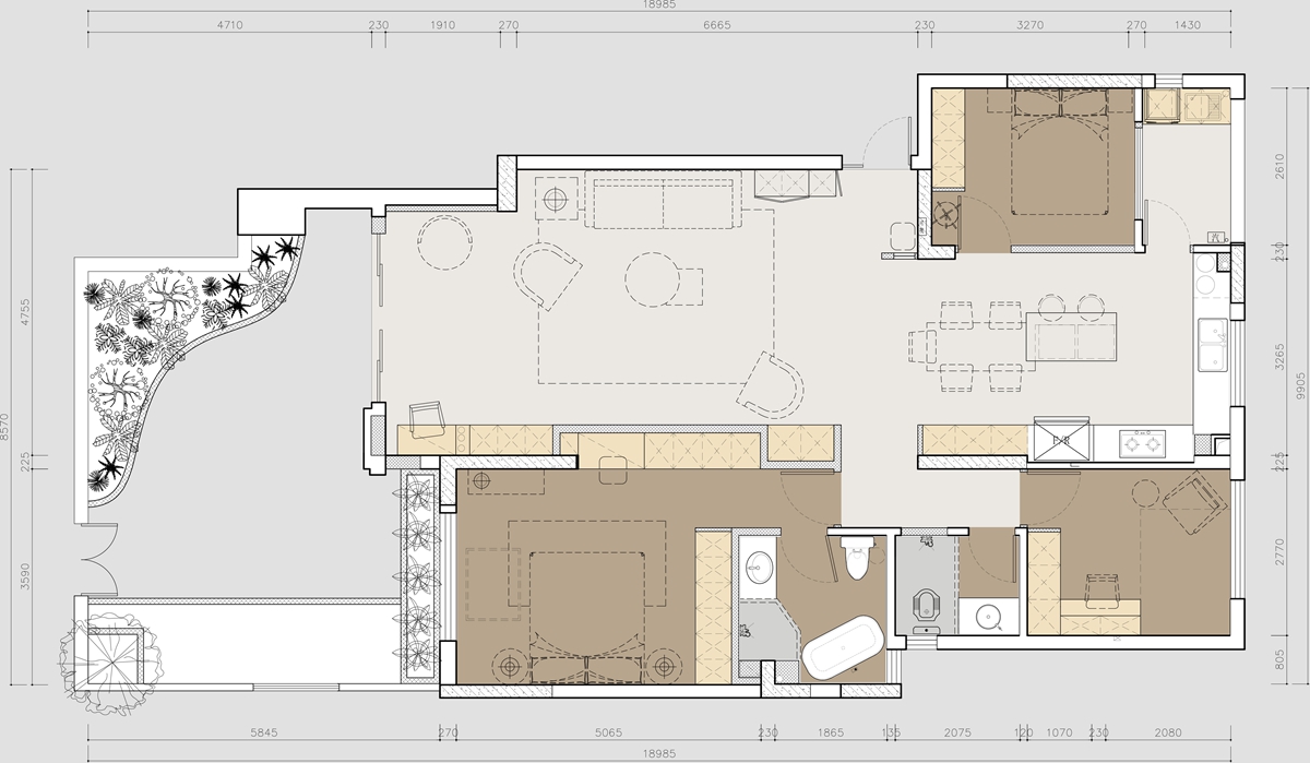
此项目位于重庆市渝北区九曲河,嘉陵江岸洋房小区,原始面积104,改造后套内面积112,此户型做三室尺寸较为拥挤,因此在设计上我没有用太过于复杂的手法,第一要素就是解决空间的尺寸问题。


/. 主卧墙体向客厅移动,形成错位墙体,利用内外结构做了主卧的衣柜和客厅的储书柜及书桌,增加了卧室储物功能。

/. 主卫向主卧扩大,在一个不到6㎡的卫生间里面增加了浴缸,并且保留了1000*1000的淋浴空间。

/. 餐厅和次卧之间拆半墙,满足中岛两边的过道尺寸。

/. 厨房设计成L型的操作台面,岛台和餐桌错位摆放,错位不仅仅为了好看,是为了满足冰箱的开启位置更加宽敞。

/. 客餐厅客厅没有做常见的电视墙,就是简单的刷白用于投影,顶面靠墙位置留30*30mm凹槽形成悬浮感。






客服咨询:
咨询热线: 023 6798 2484
营业时间: 09:00~12:00   13:00~17:00   (每周二休息)
地址:重庆广告创意产业园四期19栋106